A Beaulard, a pochi minuti dalle principali stazioni sciistiche di Bardonecchia e Sauze d’Oulx per l’inverno e dotato di molti sentieri per passeggiate semplici, trekking e MTB nella bella stagione, proponiamo in vendita un immobile bilocale posto al primo piano in Condominio con ascensore.
Il condominio, ultimato nel 1983, dispone di un importante zona “green” grazie al parco naturalistico adiacente avente varietà di flora montana e arbusti alpestri, lo stabile è inoltre dotato di parcheggi liberi scoperti, una zona da cui entrare con la macchina e l’ingresso pedonale del parco condominiale.
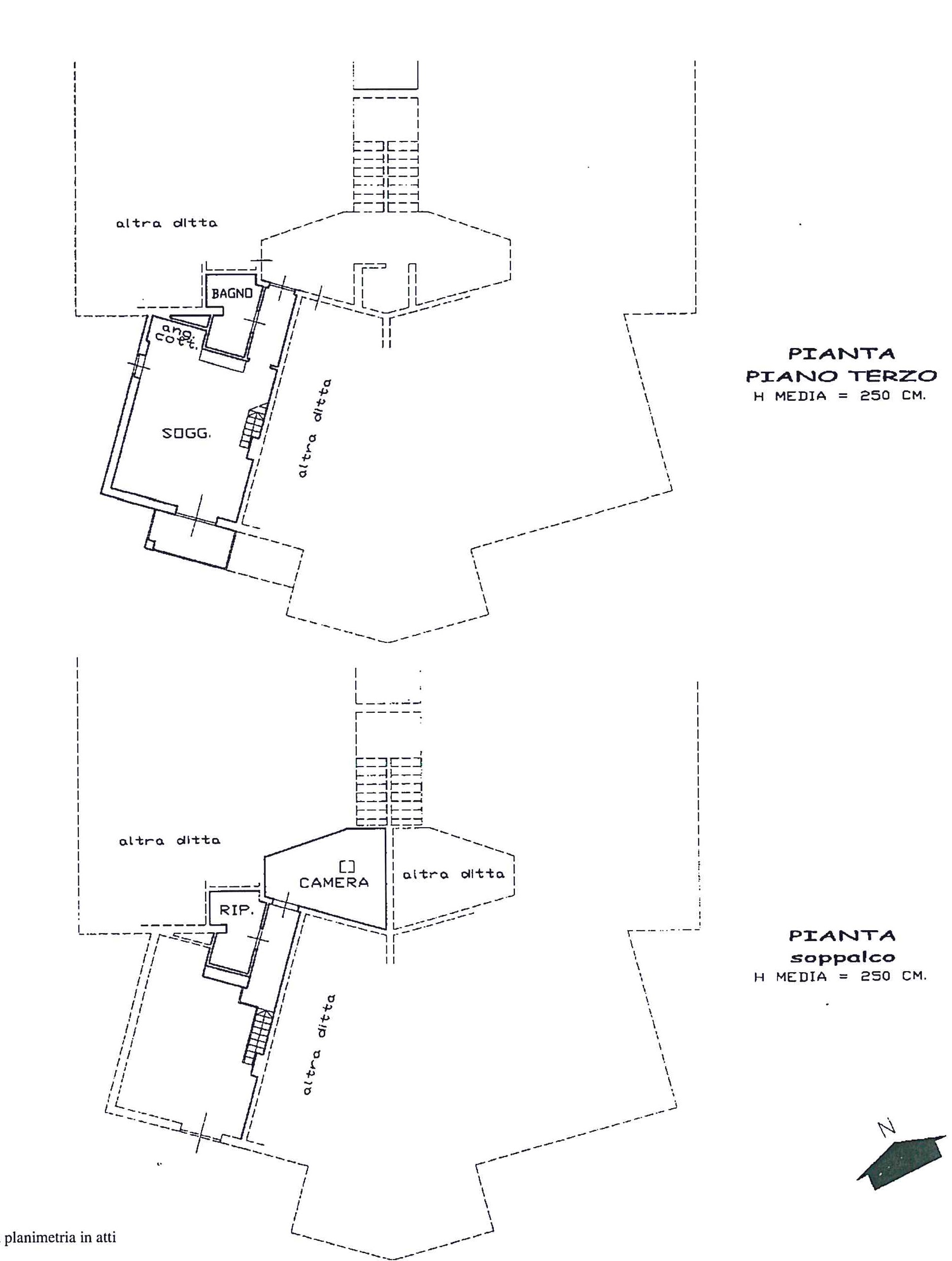
L’appartamento è composto da: ingresso, bagno con box doccia e lavatrice, soggiorno con angolo cottura, e stufa a pellet, balcone con affaccio sul parco condominiale a sud/ovest, al piano superiore tramite scala interna il disimpegno, il ripostiglio e la camera da letto matrimoniale.
L’acqua calda sanitaria è fornita da boiler elettrico, il piano cottura è a induzione, invece, per il riscaldamento oltre la stufa a pellet sono presenti i termosifoni collegati dal termostato posizionato all’ingresso. La caldaia è centralizzata a metano e anch’essa è stata installata nuova nell’autunno 2024.
A completare la proprietà vi è una cantina. Ottima soluzione come seconda casa di montagna oltre che per l’ambito della location, anche per le spese condominiali contenute.
Per maggiori informazioni vi preghiamo di contattarci via mail ad info@grandhoche.com, sul telefono fisso 0122-851910 oppure sul cellulare dello studio, chiamando o scrivendo su whatsapp, al numero 393-9597806.

























